Buildner is a global leader in organizing architecture competitions of all scales — from furniture, cottages, and guesthouses to full city rebranding. With prize budgets ranging from €5,000 to €500,000, Buildner brings proven global experience to every competition.
Launch a competitionLaunch a competition
Introduction
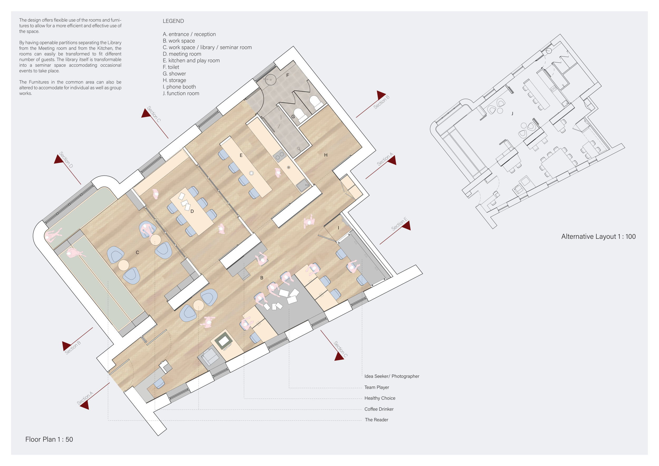
Urban Zoo Coworking was looking for a signature style for their co-working spaces, an interior design that could be applied to each new venue and customised to suit the creative needs of its users, from freelancers to startups and small businesses. Participants were challenged to create a unique space that would distinguish it from other traditional offices, invoking a sense of creativity and collaboration within the space.
The key elements that the jury took into account was the versatility and adaptability of the designs, as well as the quality of the of the coworking space and the dedication to creating a recognisable and distinct interior brand.
Bee Breeders would like to thank all entrants for their participation in the Urban Zoo Coworking Design Challenge.
1st Prize Winner
The Menagerie
Competitions are a free space to challenge yourself as a creative and to challenge the cohesion of your team. It’s also an occasion to think freely and to define what matters to you and what architect you’d like to be.
Read full interviewJury feedback summary
The Menagerie project features a modern and coherent color scheme that was eye catching, inviting, and incredibly stylised. It really complimented the concept of an “urban zoo”, creating an energetic atmosphere in which workers could connect, exchange, and collaborate. The submitted designs offered a clear and understandable concept that included an uncomplicated scheme of forms, shapes, and colors that complimented the furniture. Read more And while unique, the scheme could easily be replicated in any type of space and has the potential to become the signature interior for the Urban Zoo Coworking brand.
Enter an open architecture competition now
2nd Prize Winner
WILD
We love a challenge and see the innovative and conceptual briefs of architecture vision competitions as an opportunity to be forward-thinking and experimental in our designs. We find participating in these competitions is also a great way to contribute to the design culture on an international scale and connects us with designers worldwide.
Read full interviewJury feedback summary
WILD took modular design to the next level, with its “Kit of Parts” enabling users to customise their work space towards either individual, isolated work, or fostering collaboration and networking within the space. The project really played well with the theme of a zoo environment, exploring varying levels of exposure established through the lightweight framework of its modular system. Read more The jury selected this project as a runner-up because the highly-functional proposed grid system showed extreme originality and ingenuity, offering a variety of different types of working spaces, presentation platforms, and storage areas. And while the design has great potential in becoming a part of the Urban Zoo Coworking bran, the jury did have slight concerns about the practicalities of the structure installation, maintenance, and cost.
3rd Prize Winner
Habitat
For us, it is a unique opportunity to participate in those fields that are not fully developed inside the bureau, or in that typologies that are not required at the moment by the client but will be definitely in demand in future.
Read full interview
Russian Federation
Jury feedback summary
The Habitat project is one of the few conventional designs, with a straightforward color scheme of natural wood and plants to create a habitat where creatives could escape the rat race. The jury panel especially complimented the smart and coherent approach to zoning, with different areas being defined as settlements, nests, and jungles, each constructed by a unique arrangement of modular units. Read more The selection of the modular furniture, as well as the overall level of the concept detail, made for a compelling and intriguing working environment.
Honorable mentions
OASIS
Story of the Place
The Open Cage
Italy
Urban Zoo
Coworking Jungle
Poland
Backdrop.
Canada
Shortlisted projects
CORPSES
UNIVERSITA' DEGLI STUDI DI TRIESTE
+22 points Buildner University Rankings!
Italy The Knight
Domus Academy
+22 points Buildner University Rankings!
Thailand Red Ribbon
There´s always a better side to work
Universidad Autónoma de San Luis Potosí
+22 points Buildner University Rankings!
Mexico OUTSIDE THE BOX
PROGRAMMING COWORKING SPACE
tongji university
+22 points Buildner University Rankings!
China Beehive
Beijing University of Civil Engineering and Architecture
+22 points Buildner University Rankings!
China Story of the Place
DETACHED
Kinetic Foldniture
Urban Zoo Co-working
Urban Zoo
Habitat
URBAN ZOO
CO | An Urban Zoo Coworking Space
Common Space
Rashtrasant Tukadoji Maharaj Nagpur University
+22 points Buildner University Rankings!
India URBAN ZOO: COLLABORATIVE WORKING SPACE
Soluciones de Ingeniería
El Salvador























