Buildner is a global leader in organizing architecture competitions of all scales — from furniture, cottages, and guesthouses to full city rebranding. With prize budgets ranging from €5,000 to €500,000, Buildner brings proven global experience to every competition.
Launch a competitionLaunch a competition
Introduction
The Stone Barn Meditation Camp architecture competition sought to create a refuge for individuals amidst the pristine natural beauty of one of Latvia’s most remote regions. The focus on balance was reflected in the submitted designs, showing a true respect and regard for the environment in which the camp was to be constructed.
It was this element that made successful projects stand out in the eyes of the jury, focusing on simple and elegant designs that made full use of the layout and existing structure to create an environmentally sound retreat. Bigger is not always better, and the modest size and design of the winning projects highlighted their focus on a thoughtful, balanced relationship with nature.
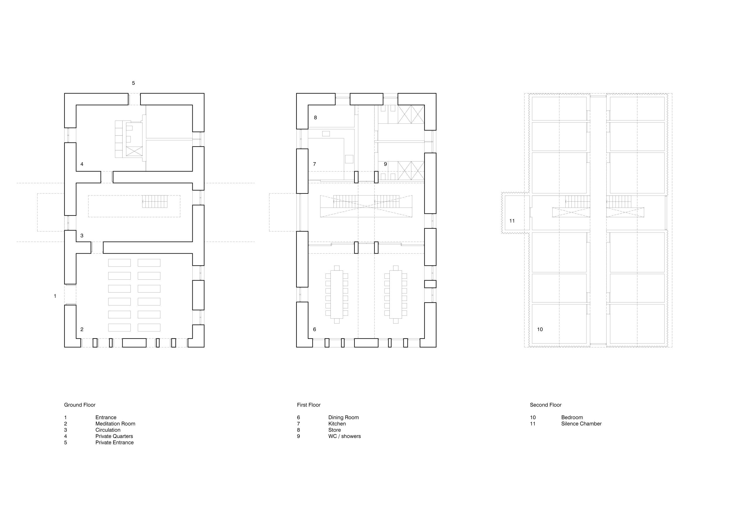
1st Prize Winner
Stone Barn Meditation Camp
The current cultural and economic conditions in Ukraine form an approach which is far from modern architecture samples. Participation in competitions allows us to be involved in the new history of architecture, be in the context, and keep up with its development.
Read full interview
Ukraine
Jury feedback summary
The first prize winner is successful in its provision of the architectural solution of volumes. The shape, structure and covering of the volumes, of both existing and added buildings, is in context with the structure’s rural and natural landscape. It sees a thatched main building and side buildings dispersed along the site, giving it a prominent rural appearance. Read more The general strategy is simple, inserting an axis made of flowers along which the functions of the meditation camp are distributed. The close relationship with nature is well-conceived, with various forms of renewable energy incorporated, including geothermal, wind renewables and rainwater collection to lessen the environmental impact. The design’s strength comes from its clear and compact design, its effective use of space, and its effective sustainable strategy.
Enter an open architecture competition now
2nd Prize Winner
Medita
It is fundamental, for us as a design firm, to participate in these types of competitions because it opens plenty of opportunities: it gives us a global vision of the architecture needs, it provides a bigger understanding of the importance of function and creativity and last but not least, it adds work experience to our office.
Read full interview
Mexico
Jury feedback summary
The second prize winners were chosen for their clear approach, from the conceptual design level, to the general plan and architectural level. The stone barn is the focal point for this design, with new buildings planned surrounding it in order to create multiple courtyards. The different functions of the meditation camp are then served by an internal corridor.
3rd Prize Winner
Stone Barn Meditation Camp
Architecture design competitions are a wonderful way of communicating your ideas and visions to a larger audience. For a small team from a small developing country like ours, it is very difficult to reach out to a larger audience by any other means.
Read full interviewJury feedback summary
The success of the third prize winners comes from the project’s good preservation of the original stone barn, and creative positioning of adjacent structures. The iconic looking building does well not to break visual links inwards or outward. The design integrates the landscape, in the form of roof gardens, into its insulation strategy, combining it with renewable geothermal energy to power the barn and its surrounding structures. Read more The new design embraces the old, as it hugs the earth with sunken trapezoidal structure with a moat and platform, and retains its visual links to and from the existing structure.
BB STUDENT AWARD
Stone Barn Meditation Camp
Poland
BB GREEN AWARD
A Stone Barn
Poland
Honorable mentions
Shortlisted projects
Project ID 7714
The University of Texas at Arlington
+22 points Buildner University Rankings!
United States Project ID 7696
Politechnika Wrocławska
+22 points Buildner University Rankings!
Poland Project ID 7587
Project ID 7584
The White Harmitage
Academy of Fine Arts in Gdansk
+22 points Buildner University Rankings!
Poland The House for nature lover.
STONE BARN MEDITATION CAMP
Project ID 7575
Project ID 7573
Project ID 7570
Stone Barn Meditation Camp
ELEMENT - STONE BARN MEDITATION CAMP
Stone Barn Meditation Camp
Politechnika Wrocławska
+72 points Buildner University Rankings!
Poland STONE BARN Project ID 7308
Stone Barn Meditation Camp
Stone Barn Meditation Camp
YOgabocik
Szent István University Ybl Miklós Faculty of Architecture and Civil Engineering
+22 points Buildner University Rankings!
Hungary Stone Barn Meditation Camp
Stone Barn Meditation Camp
Journey Within | Stone Barn Meditation Camp















