Buildner is a global leader in organizing architecture competitions of all scales — from furniture, cottages, and guesthouses to full city rebranding. With prize budgets ranging from €5,000 to €500,000, Buildner brings proven global experience to every competition.
Launch a competitionLaunch a competition
Introduction
The Blue Clay Country Spa competition pursues provocation of a decisive contemporary issue. The rise of sweeping urban migrations of the last quarter century coincides with a disciplinary preoccupation of architecture and the city, manifested in theory and praxis. This has all but left the vast expanse of any non-urban territory virtually uncertain. The competition invites students and professionals to contemplate the economic, cultural, and architectural implications of inhabiting the non-urban, through an ecotourist facility in Latvia.
Viable submissions interrogate the inherent tensions between subject and object, building and site, leveraging established programmatic and site constraints. Particularly successful projects engage the agency of typological form — including for instance, the courtyard, shed, garden and pavilion. This is particularly significant in a landscape unadulterated by buildings. Selected entries establish social collectivity through circulation and parti, while prescribing distinct individual and programmatic experience through space, material, and form.
1st Prize Winner
Blue Clay Country Spa
Jury feedback summary
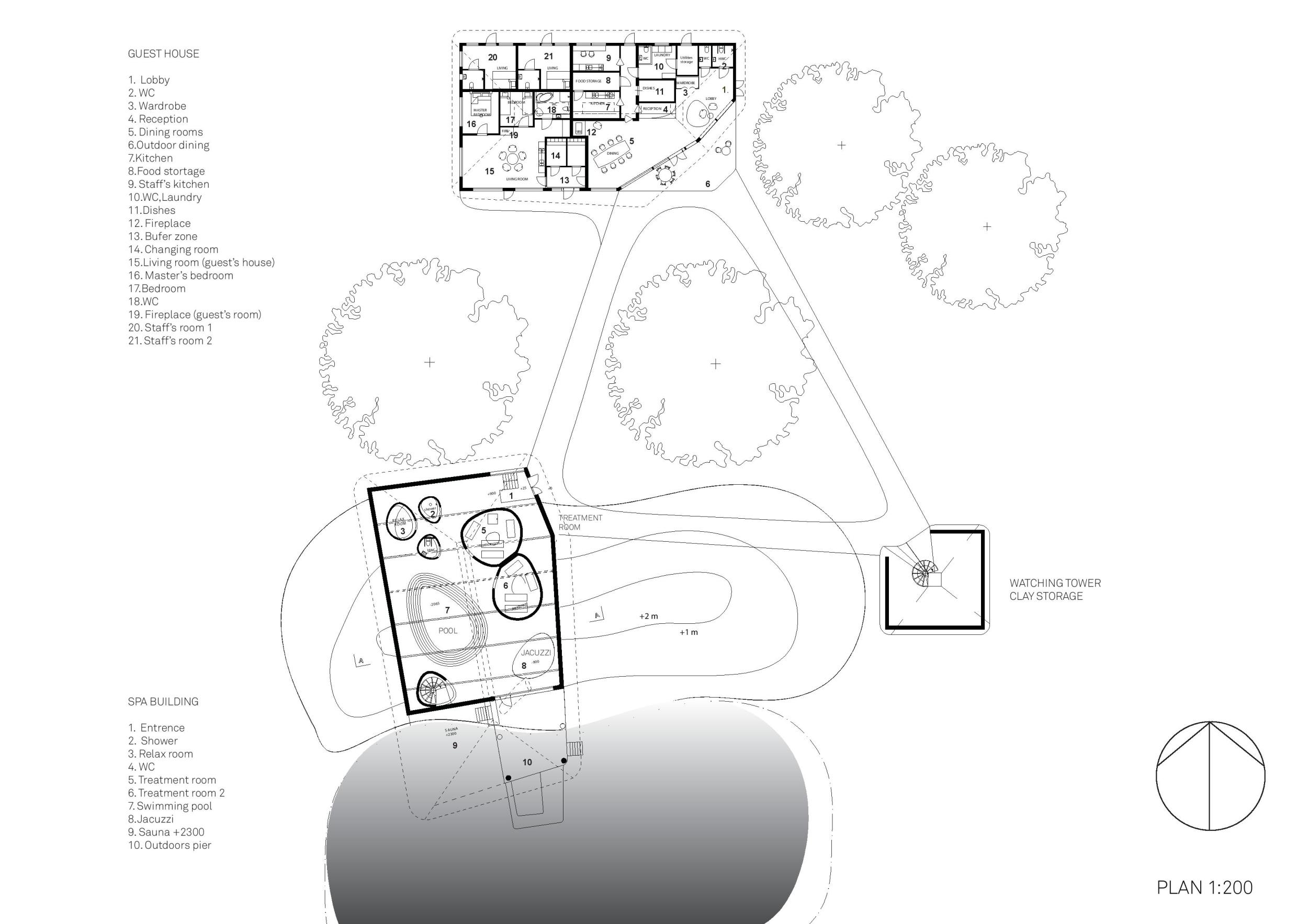
The first place entry for the Blue Clay Country Spa is successful in its reprogramming of a spatial archetype, the hortus conclusus, or walled garden. The primary gesture of the project is a circular promenade that unites each functional space of the spa. The wall circumscribes an interior garden and orchard, enclosing the spa with a colonnade that functions both as wall and social space. Read more This formal armature of the circle allows each room of the spa - sauna, public bath, and guest house - to individually reflect its unique programmatic demands without detracting from the unifying identity of the project. Each space, simply detailed with native woods and exposed structure, fulfills the particular programmatic requirements of water, heat, light, privacy, and views. This circular space of ambulation marks the territory of the spa while still retaining the trace of the clearing in the forest, perpetuating the memory of Baltic vernacular architecture. With an ethos of minimal interference and simplicity, this hortus conclusus pursues a new type of ecotourism, one in which the spatial diagram of the spa enables a new environmental, cultural, and social agency.
Enter an open architecture competition now
2nd Prize Winner
A House for Jānis
Jury feedback summary
The success of the second place proposal for the Blue Clay Country Spa competition lies in its strong response to the site and its playful reinterpretation of vernacular form. The project consists of a primary linear structure: a thatched roof longhouse spanning from the forest edge to the lake and rooted in the traditional Kurzeme typology typical of the region. Read more A second linear element - a strip of productive landscape containing gardens, outdoor dining, a pool, and other ecological services - intersects the longhouse at an angle and divides the site into disparate quadrants. Within the structure, a series of whimsical follies contain the program and the remaining space is effectively open to the outdoors, creating a blurred threshold between landscape and interior. This linear parti, combined with the calculated rhythm of enclosed elements, define an interior procession from the forest to the lake, while the porosity of the structure allows for visitors to filter into the landscape. The strength of the linear strategy is further emphasized by the scale of the traditional thatched roof, forming a long opaque bar against the backdrop of trees, isolating the separated landscape spaces and creating peaceful, intimate realms while allowing permeation through the building and its inner world.
3rd Prize Winner
Reflection in the Garden
Jury feedback summary
The strength of the third place entry lies in its combination of three architecture typologies, the courtyard, pavilion, and promenade, to generate a spa experience that is simultaneously containing and exposing. The project employs a circular promenade to create a defined perimeter within an expansive, rural site. The rigid perimeter is strategically broken down by the program contained within, creating a surprisingly outwardly engaging experience. Read more The interior program of the spa is organized around a central gathering courtyard. The courtyard extends and crosses the perimeter promenade to create and define the building entry. The major circulation corridors pinwheel off from the central courtyard extending past the promenade to the landscape breaking down the program into isolated structures. Each structure contains a key programmatic element that is separated as a pavilion within a carved out courtyard. The pavilions take on distinct architectural forms defining unique spatial experiences for the programs they house. The small pavilion courts directly engage the perimeter promenade focusing the user to the exterior of the site while inviting the wanderer to simultaneously look in. The project creates a closed loop of retrospection allowing the visitor to reflect outwardly to the landscape while inhabiting each individual spa space, simultaneously reflecting back inwardly while wandering the exterior promenade.
BB STUDENT AWARD
Boxes!
BB GREEN AWARD
Blue Clay Country Spa - Garden Spa
Honorable mentions
The Blue Clay Temple
Ukraine
Blue Brick
Albania
Shortlisted projects
Boxes!
Facultad de Arquitectura Diseño y Urbanismo - UdelaR
+72 points Buildner University Rankings!
Uruguay NARCISSUS Project ID 6561
Project ID 6472
École Nationale supérieure d'architecture de Lyon (ENSAL)
+22 points Buildner University Rankings!
France Remedium
A room with a view
Saules zīme
Funnel roof project ID 6256
LATVIAN RETREAT - Project ID 6203
THE ESC
Thailand CO2HABITATION
"ION MINCU" UNIVERSITY OF ARCHITECTURE AND URBANISM
+22 points Buildner University Rankings!
Romania Project ID 6151
University of Bath
+22 points Buildner University Rankings!
United Kingdom Project ID 6089 - Blue Clay Country Spa Competition
United Kingdom Project ID 6057
Blue Clay Wellness Village
Italy Gaidīts Blue Clay
Three Chambers
University of Architecture and Urbanism Ion Mincu
+22 points Buildner University Rankings!
Romania WHALE’S BELLY
A look to the woods and a look to the sky
BLACK HOUSE I GREEN HOUSE
Blue Clay Country Spa
Faculty of Civil Engineering, Architecture and Geodesy
+22 points Buildner University Rankings!
Croatia BLU
Politecnico di Milano
+22 points Buildner University Rankings!
Italy























