Buildner is a global leader in organizing architecture competitions of all scales — from furniture, cottages, and guesthouses to full city rebranding. With prize budgets ranging from €5,000 to €500,000, Buildner brings proven global experience to every competition.

Launch a competition

Launch a competition

Introducing Microhome: The Kingspan Edition with a 150,000 € prize fund

COMPETITION ORGANISERS
MICROHOME
Official partner
MICROHOME

Buildner, in collaboration with Kingspan, is thrilled to announce the winners of the MICROHOME Kingspan Edition. This year's competition marked the seventh edition of the esteemed MICROHOME architecture competition, attracting a global audience of professional and student architects and designers from 115 countries. 

The global housing crisis is intensifying, with rising property costs and insufficient housing supply affecting millions. As urban areas grow and environmental concerns increase, there is a pressing need for affordable, sustainable, and compact housing solutions. Architects are crucial in addressing this issue by designing efficient and environmentally responsible homes. Compact living offers a practical approach to providing affordable housing while supporting sustainable urban development. By focusing on these aspects, architects can contribute to creating functional and equitable housing solutions that meet current and future needs. 

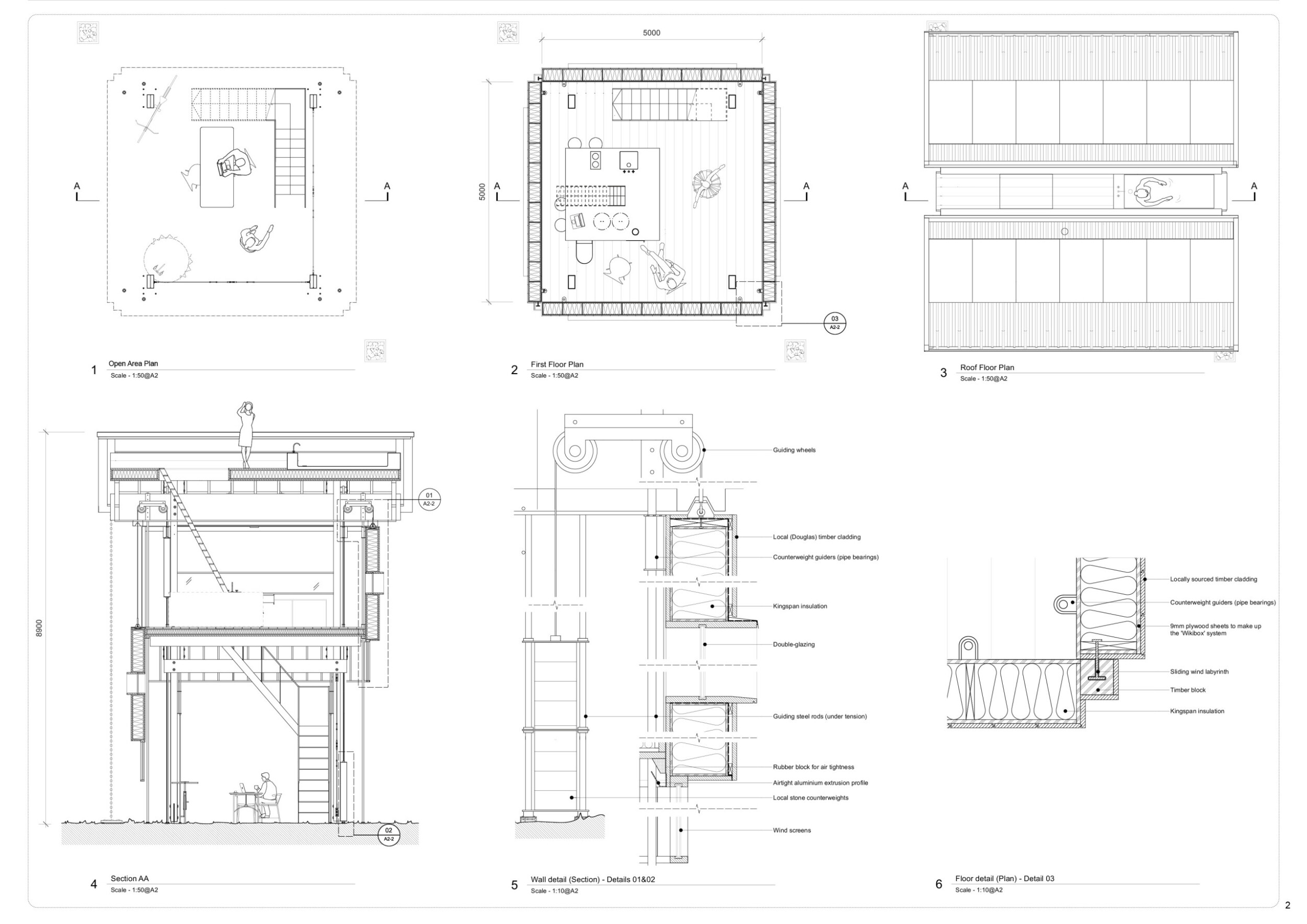
To that end, the MICROHOME Kingspan Edition invited participants to conceptualize an off-grid modular dwelling for a hypothetical young professional couple, with a total floor area not exceeding 25 m². This challenge encouraged innovative thinking in spatial organization, distinctive aesthetics, and the use of state-of-the-art technologies and materials. The competition had no geographical restrictions on the hypothetical sites, allowing for unlimited creativity whether urban or rural. 

Participants were asked to focus on key design considerations including:

  • Community Integration: How the design fosters a sense of community, encourages social interaction, or contributes to the local social fabric.
  • Sustainability and Environmental Impact: Implementation of green technologies, renewable energy, waste reduction, and water conservation to make the dwelling self-sustaining and minimize its ecological footprint.
  • Affordability and Accessibility: Economic feasibility and accessibility for different income levels, especially for underserved or marginalized communities.
  • Adaptability and Scalability: The design's ability to be adapted or replicated in various contexts or communities, considering modularity, local materials, and scalability. 
  • Educational and Social Awareness: Potential for the design to serve as a model or educational tool promoting sustainable living and community building. 

 



Once again, Buildner thanks all participants, jury members, and Kingspan for making this edition a phenomenal success. We look forward to the future of MICROHOME architecture and the innovative designs that will shape sustainable living.

Buildner worked with an international jury panel to evaluate the received entries:

Brent Trenga

Director of Sustainability, Kingspan Insulated Panels

USA

David Basulto

Founder, ArchDaily

Germany

Ben Van Berkel

Founder and Principle, UNStudio

Netherlands

Paulo Flores

Director, Zaha Hadid Architects

UK

Flora Lee

Associate Partner, MAD Architects

USA

Martina Martino

CEO, Mario Cucinella Architects

Italy

Silvana Ordinas

Founder and Partner, Peter Pichler Architecture

Italy

Carlo Ratti

Director, MIT Senseable City Lab

USA

Lori Zillante

Mario Cucinella Architects

Italy

Enter the next competition edition
MICROHOME 2026

Design a new concept of small-scale home and share a prize fund of 100,000€

100,000 € Prize Fund / Kingpsan Edition #11 ideas COMPETITION

1st Prize Winner

Project name

Urban Residential Pod

Award

40,000 €

Our studio participates in competitions because they allow us to challenge ourselves and enhance our skills. They allow us to tackle unique design problems by experimenting with innovative solutions that explore unconventional ideas and push the boundaries of traditional design. Competitions also provide an opportunity for us to showcase our creativity and abilities. Winning or even participating can significantly boost our visibility and attract the attention of potential clients and future employees.

Read full interview
Author
Daniel Rojas
Country
United States
  • 10/10 Linework
  • 10/10 Quality of drawings
  • 10/10 Balance of color
  • 9/10 Layout
  • 9/10 Hierarchy
  • 10/10 Annotation
  • 7/10 Text
  • 10/10 Clarity of story
  • 10/10 Clarity of diagrams
  • 10/10 Quality of overall presentation

2nd Prize Winner

Project name

Why is living in Hong Kong so exhausting?

Award

20,000 €

We participate in architecture competitions as we believe they provide a platform to exchange our opinion about the discipline. It is also a chance to confront ourselves with individuals from diverse cultural and academic backgrounds, thereby facilitating a cross-pollination of unique perspectives. This collaborative process not only yields positive outcomes but also nurtures our growth as professionals and humanists.

Read full interview
Authors
Giorgio Maria Martellono
Luca Quadro
Chang Liu
Jacopo Leccia
Country
Italy
  • 10/10 Linework
  • 10/10 Quality of drawings
  • 10/10 Balance of color
  • 10/10 Layout
  • 10/10 Hierarchy
  • 7/10 Annotation
  • 8/10 Text
  • 9/10 Clarity of story
  • 10/10 Clarity of diagrams
  • 9/10 Quality of overall presentation

3rd Prize Winner

Project name

respira

Award

10,000 €

I think the goal of architecture competitions is to test out innovative ideas and showcase the creative potential of young designers and architects. I like to take part in these competitions to challenge myself and my creative thinking, and to improve my project managing skills for the future.

Read full interview
Author
Valentí Soler Casas
Country
Spain
  • 10/10 Linework
  • 10/10 Quality of drawings
  • 10/10 Balance of color
  • 10/10 Layout
  • 10/10 Hierarchy
  • 8/10 Annotation
  • 10/10 Text
  • 10/10 Clarity of story
  • 10/10 Clarity of diagrams
  • 10/10 Quality of overall presentation

Kingspan award winner

Project name

TOTEM

Award

40,000 €

I like taking part in architecture competitions because, at the end of each one, I come out professionally enriched.

Read full interview
Author
Alessandro Ghidini
Country
Italy
Use of Kingspan products in this design
QuadCore AWP LEC Wall Panel

Insulated panels offer a rapid-build system and ease of disassembly. This lower embodied carbon wall panel option offers a range of aesthetic profiles.

Dri-Design Cassette System

This rapid-build aluminium cassette system offers stunning aesthetic flexibility and is mounted on Kingspan’s Karrier insulated wall panel system.

  • N/A Linework
  • N/A Quality of drawings
  • N/A Balance of color
  • N/A Layout
  • N/A Hierarchy
  • N/A Annotation
  • N/A Text
  • N/A Clarity of story
  • N/A Clarity of diagrams
  • N/A Quality of overall presentation

Kingspan Compliments

Show Kingspan Compliments Hide Kingspan Compliments
Project name

The Forest Keeper's Outpost

Award

5,000 €

Competitions provide an opportunity for us to explore ideas that are not restricted by the constraints we deal with in our day-to-day work. They give us a chance to see what outcomes we can achieve when we are in control of the whole process. It's also a great test of our ability to work together!

Read full interview
Authors
Matthew John Fallowfield-cooper
Airydas Mikalajūnas
Country
United Kingdom
Use of Kingspan products in this design
Troldtekt v-line Accoustic Ceiling Tile

This attractive award-winning ceiling tile is made from woodwool and FUTURECEM and comes in a range of designs and colours.

Project name

About Time

Award

5,000 €

Occasionally, we take part in open architecture or urban design competition to exercise our mind, evoke new insights and discourses. The nature of competitions offer the anonymity and almost act as a complete blank canvas to keep us distant from preconceived ideas. It is refreshing to disconnect us from the day-to-day work, yet challenging at the same time to reconnect us to the creative niche in the world of design.

Read full interview
Authors
Yi Yang Chai
Ng Yi Ming
Country
Malaysia
Use of Kingspan products in this design
Solatube Tubular Skylight

A sleek unobtrusive tubular skylight that brings natural daylight into the space and has a solar powered nightlight built in.

Rainwater Harvesting SLIMLINE TANK

A range of steel slimline water tanks suitable for urban dwellings, helping home-owners reduce water usage and conserve this precious natural resource.

Project name

series.GreenHouse

Award

5,000 €

Author
Davis Russell Drury
Country
United States
Use of Kingspan products in this design
Rainwater Harvesting SLIMLINE TANK

A range of steel slimline water tanks suitable for urban dwellings, helping home-owners reduce water usage and conserve this precious natural resource.

Project name

Mesh

Award

5,000 €

We participate in architectural competitions because they provide us with the opportunity to push the boundaries of our creativity, tackle new challenges, and contribute with innovative ideas. It also allows us to engage in research, development, and measure ourselves against other firms worldwide.

Read full interview
Authors
Alessandro Carlodalatri
Francesco Cavaterra
Country
Italy
Use of Kingspan products in this design
Dri-Design Cassette System

This rapid-build aluminium cassette system offers stunning aesthetic flexibility and is mounted on Kingspan’s Karrier insulated wall panel system.

Buildner Student Award

Project name

Wavefront Living

Award

10,000 €

We participate in architecture competitions because they inspire us to explore new ideas and grow as designers. These challenges push us to think creatively and tackle real-world issues in the built environment. Competitions also give us a chance to learn from and collaborate with others in the field, enriching our perspectives and expanding our skills. Through these experiences, we hope to contribute meaningful, sustainable solutions while continuing to improve and evolve as architects.

Read full interview
Authors
Yoong Zheng Quan
Cheah Kim Hoong
Branda Wee
Pang Jian Sheng
Country
Malaysia
+72 points Buildner University Rankings
  • 8/10 Linework
  • 9/10 Quality of drawings
  • 9/10 Balance of color
  • 7/10 Layout
  • 9/10 Hierarchy
  • 9/10 Annotation
  • 7/10 Text
  • 9/10 Clarity of story
  • 8/10 Clarity of diagrams
  • 9/10 Quality of overall presentation

Buildner Sustainability Award

Project name

Cellula(r)

Award

10,000 €

A blank page. That is how it starts. As we dream, we discuss and sketch. From chaos to a guideline, the design process is just like a new story, a short one with a beginning, middle, and end. The question arises: What impedes us from embarking on a new odyssey?

Read full interview
Authors
Hazem Elshafei
Manuel Villalain Gonzalez
Pedro Xavier Martins Silva
Country
Netherlands
  • 10/10 Linework
  • 10/10 Quality of drawings
  • 10/10 Balance of color
  • 10/10 Layout
  • 9/10 Hierarchy
  • 8/10 Annotation
  • 7/10 Text
  • 8/10 Clarity of story
  • 8/10 Clarity of diagrams
  • 9/10 Quality of overall presentation

Honorable mentions

Show honorable mentions (6 of 6) Hide honorable mentions projects
Project name

Aquagon

I participate in architecture competitions to constantly challenge myself and push the boundaries of innovative design. While my work focuses on finding solutions for complex infrastructure projects, these competitions provide a unique platform to explore creative ideas and reflect on pressing global issues. They allow me to step outside the constraints of commercially driven projects and experiment with bold, visionary concepts. This not only keeps my design skills sharp but also fuels my passion for addressing societal challenges through architecture, contributing fresh perspectives to the field and fostering a deeper connection with the broader architectural community.

Read full interview
Author
Marco Catena
Country
United Kingdom
Project name

DAO microhome

This is the second time we are participating in architectural competitions. After our first experience, we wanted to test ourselves and our ideas again, but this time with a more challenging task. The topic of micro-houses is extremely relevant right now. Designing a micro-house with limited space and conditions has been a truly beneficial challenge for our development. Working on this project, we not only honed our skills but also delved into the philosophy of conscious living. Micro-houses require creativity and innovative approaches to space utilization, which opens new horizons for architects. For us, it has been an opportunity to rethink conventional approaches and find new solutions that meet the challenges of today.

Read full interview
Authors
Zakhar Zibrov
Diana Zibrova
Daniil Hiermashev
Country
Ukraine
Project name

INTERSTICE HOUSE

Participating in architecture competitions allows us to deeply reflect on the principles of architecture. While practice teaches us many rules, competitions provide a chance to create variations on what we once thought was rigid and immutable. We believe that attempts to escape the gravity of conventional frameworks and explore new, alternative solutions lead to great design.

Read full interview
Authors
Jiwon Jung
Piyatida Wetcho
Hyung Chul Ko
Country
United States
Project name

5³: off grid housing in urban voids

Taking the time to work in a project within a competition is great for stimulating a curiosity to always seek the solutions that deeply interest you and represent what you believe to be great architecture. This is a good exercise to be made no matter if you're still in college or already working as an architect. It is always worth remembering why you wanted to work with architecture in the first place, and competitions are great for that.

Read full interview
Authors
Débora Mendes Nunes Jank
Rafael Magno De Moraes
Arthur Santos De Andrade
Country
Brazil
Project name

Parkhouse

We participate in competitions to present our concepts for important topics of the architectural discourse. Hopefully, through this, some of our ideas can be realised in the future. On top of that, it is a good exposure for our small office.

Read full interview
Authors
Moritz Felix Maier
Ruonan Wang
Country
Germany
Project name

Big Small House

Participating in architecture competitions might seem insane to some, as it means continuing to work even after a full day in the office. However, this is driven by our passion for what we do. We love the challenge of solving complex functional problems and transforming them into beautiful forms. In the day-to-day life of an architect, we often face restrictions, budgets, and other challenges that limit our creative freedom. Competitions, especially open ones without fixed budgets, offer us the opportunity to express ourselves fully and experiment with fresh, innovative ideas. They allow us to break free from conventional constraints and explore new possibilities in architecture. This passion for creative freedom and innovation is what drew us to competitions like the MicroHome Competition. These platforms enable us to push the boundaries of architecture and contribute to the field in meaningful and impactful ways.

Read full interview
Authors
Konrad Wojcik
Martin Ulrik Jorgensen
Country
Denmark

Shortlisted projects

Show Shortlisted projects Hide Shortlisted projects

House with One Wall

Timotei Hotea
Eduard Rubin Galesanu
Laurentiu-otniel-iacob Palincaş
Larissa Catalina Danci
Romania

respira

Valentí Soler Casas
Spain

SWIPE HOUSE

Lucia Rush
Argentina

Shapeshifter

Vedad Islambegović
Fatima Hafizović
Nejra Ahmić
Bosnia

RE-home

Merve Coşkun öğüt
Hasan öğüt
Turkey

Big Small House

Konrad Wojcik
Martin Ulrik Jorgensen
Denmark

Parkhouse

Moritz Felix Maier
Ruonan Wang
Germany

Concrete Clouds

Matthew Pratt
United Kingdom

GIGANTIC PUMPKIN - PUSH&PULL

Attaporn Palawattanakul
Thailand

Wavefront Living

Yoong Zheng Quan
Cheah Kim Hoong
Branda Wee
Pang Jian Sheng

Universiti Putra Malaysia

+72 points Buildner University Rankings!
Malaysia

Light-house

Graeme Alexander Massie

Graeme Massie Architects

United Kingdom

5³: off grid housing in urban voids

Débora Mendes Nunes Jank
Rafael Magno De Moraes
Arthur Santos De Andrade
Brazil

URBAN UTOPIA

Dean Li
China

Agronaut

Jeffrey Valentino Widjaja
Jordan Davis Widjaja
Indonesia

TOTEM

Alessandro Ghidini
Italy

Oasis In The Void

Shuang Chen
Yushan Jiang
Hengyuan Yang
United States

The Traveler Epiphany

Aldana Sofia Nizza
Paolo Burattini
Camila Fagnani
Argentina

INTERSTICE HOUSE

Jiwon Jung
Piyatida Wetcho
Hyung Chul Ko
United States

Urban Residential Pod

Daniel Rojas

Wandrian Studios

United States

M3: Multipurpose Modular Microhouse

Abraham Chintianto
Indonesia

Cellula(r)

Hazem Elshafei
Manuel Villalain Gonzalez
Pedro Xavier Martins Silva
Netherlands

URBAN MYCORRHIZAE

Lionel Tavera
Maxence Gremont
France

DOMHII shelter - from waste... to a placed home

Marco António De Medeiros Porto Silva
Portugal

MASS MICRO

Michael G Harpster
Joshua Puppe
United States

The Core

Kristýna Rosecká
Sandro Nanić
Canada

Aquagon

Marco Catena
United Kingdom

MASURIAN MICROHOME

Maksymilian Marek łuszcz
Paweł Andrzej Wykowski
Zofia Anna Zimowska

Warsaw University of Technology , Politechnika Warszawska

+22 points Buildner University Rankings!
Poland

Through the looking glass

Silviu-virgil Aldea
Romania

Concrete Phoenix

Dmytro Kyslyi
Yurii Parkhomenko
Yevhenii Myronenko
Poland

Microhope

Abdollah Enferadi
Fateme Kameli
Alireza Rezaei
Arash Shariati
United Arab Emirates

MOVE TO CONNECT

Angelica Rimoldi
Netherlands

DAO microhome

Zakhar Zibrov
Diana Zibrova
Daniil Hiermashev
Ukraine

FOLD

Paolo Dolceamore
Omar Cicci
Federico Andrea Iannarone
Matteo Dossetto
Italy

Anywhere, Everywhere, All at Once

Temitope Israel Akinsiku
Victor Igene
Emmanuel Etim
Deborah Kikelomo Oluwade
Canada

Why is living in Hong Kong so exhausting?

Giorgio Maria Martellono
Luca Quadro
Chang Liu
Jacopo Leccia
Italy

series.GreenHouse

Davis Russell Drury
United States

About Time

Yi Yang Chai
Ng Yi Ming
Malaysia

SOCIAL PUZZLE

Quy Phu Nguyen
Germany

Agora: Malleable Form of Living on Collectiveness

Man Kit Cheung
Hong Kong

Våghus

Domen Strazar

Doms Architect

Sweden

GENESIS - prefab cell house kit

Roxana-andreea Irimia
Mihai Bogdan Ionită
Romania