Buildner is a global leader in organizing architecture competitions of all scales — from furniture, cottages, and guesthouses to full city rebranding. With prize budgets ranging from €5,000 to €500,000, Buildner brings proven global experience to every competition.
Launch a competitionLaunch a competition
Introduction
Coffeeshops have become an integral part of the modern urban landscape, with your next shot of espresso never more than a short walk away. Coffee culture witnessed a boom in popularity in the 90s; experiencing incredible growth that was further boosted by the emergence of the digital age. Nowadays you’d be hard-pressed to find a cafe not filled to the brim with an army of “freelancers” workers searching for a strong WiFi signal and an even stronger Arabica blend.
Despite what sitcoms like Friends might have you believe, Americans are not the biggest coffee-drinkers in the world. Scandinavian countries like Finland, Norway, Denmark, Iceland, and Sweden are the ones that crave the most caffeine, with world number 1 Finland consuming an average of 12 kg of coffee per person per year.
Participants of this competition were tasked with expanding the premise of the modern coffee shop, creating a design that could be easily replicated in miniscule locations across northern Europe. They were asked to look past the traditional lounge motif that permeates today’s coffee shop culture, and create a new iconic look for the caffeine dispensary.
The jury’s primary focus when selecting winning projects was this iconic flair. The jury showed preference for those designs that were easily recognisable, and as such could be used to build a brand around their characteristics.
The high quality of the winning projects as well as the honorable mentions reflects the outstanding level of work submitted. Buildner would like to thank all entrants for their participation.
1st Prize Winner
Jury feedback summary
The “Coffee Podium” flipped the concept of a coffee house on its head, creating a temporary structure that revels in its pop-up nature. The bulk of the podium is made of a scaffolding system which is integrated into the coffee house to make it lightweight, easy to construct, and easy to dismantle. A single barista can work from the 4.3m x 3.9m kiosk which is elevated above the ground amidst waterproof plywood panels and translucent polycarbonate plastic panels. Read more Customers would navigate a modular ladder system that forms a loop circulation, creating a panoramic view path. The jury were impressed with this combination of iconic design and original thinking, all while imparting a minimal footprint that is easily constructed in any location.
Enter an open architecture competition now
2nd Prize Winner
Tiny Coffee House
United States
Jury feedback summary
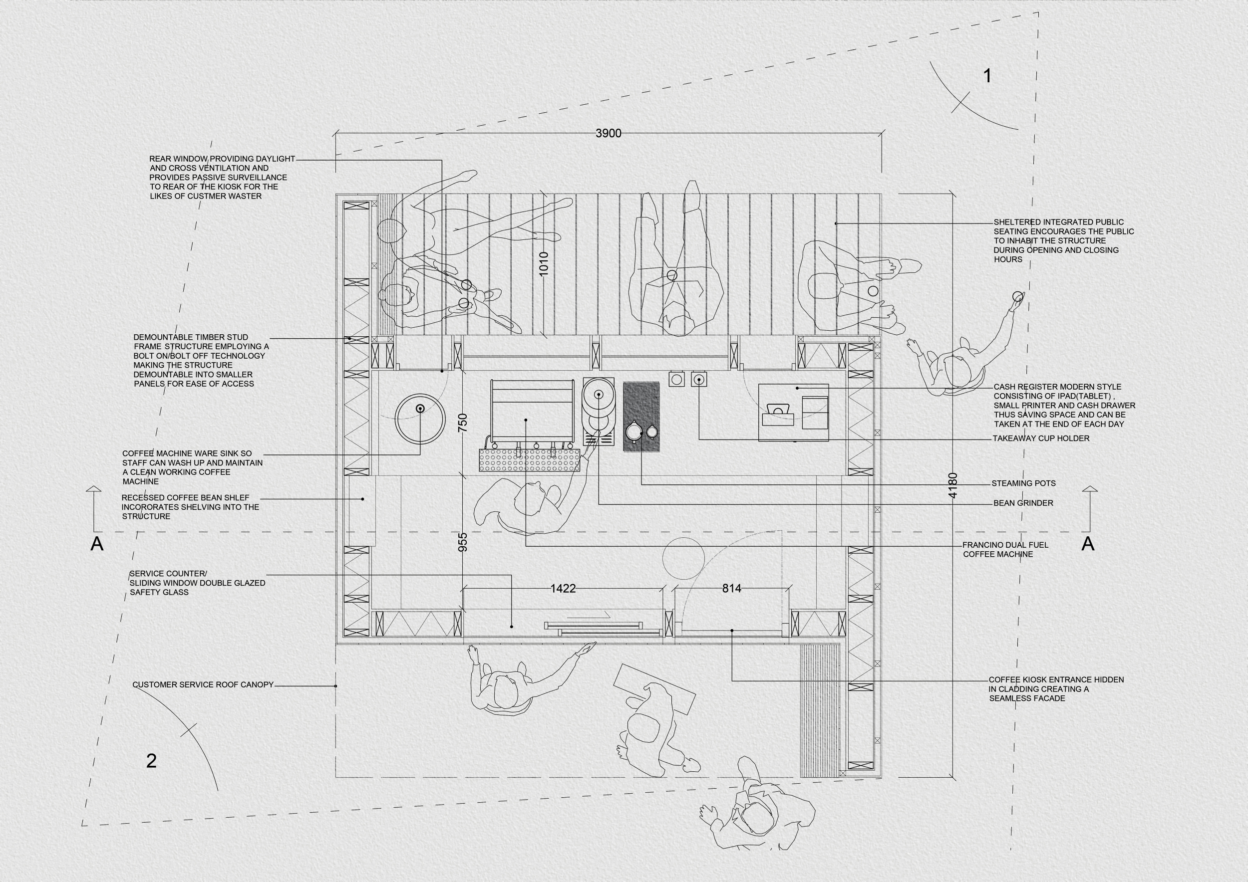
The “Tiny Coffee House” project features an eye-catching steeped entrance, creating a unique and iconic look that has the potential to be used for the company’s brand identity. Split into two parts, the Coffee House has a dedicated workstation, and sitting area, the latter of which looks to provide a calm climate for customers to stop off and enjoy their coffee. The interior space is inviting, with its warm material and elevated ceiling form. Read more The building has an adaptable structure which can be changed throughout the year, opening up the sitting area to provide outside seating during warm weather.
3rd Prize Winner
As Home
Jury feedback summary
The pragmatic “AsHome” project follows two guidelines that are indicative of Scandinavian countries: order and simplicity. This portable coffee house’s framework is made of non-toxic recyclable aluminium coated with wood, creating a cosy area where customers can relax and enjoy a hot cup of coffee. It features solar-powered LED lighting as well as two large glass walls, placed lengthwise along the sides. Read more The project aims to allow customers to enjoy homemade coffee in whichever location it is placed, creating a warm and cosy environment, while at the same time organizing the space in a functional and harmonious way.
Honorable mentions
Fika
Kremm Coffee and Gelatin
Thailand
Arthropod
The Big Tiny Coffee House Challenge
United Kingdom
Shortlisted projects
Krem Coffee House: retail as communal icon
Tiny Coffee House
Old Dominion University
+92 points Buildner University Rankings!
United States Kremm Coffee and Gelatin
King Mongkut'si institute of Technology Ladkrabang
+72 points Buildner University Rankings!
Thailand First Crack
Coffee TELTTA
Yatra: The Journey
A for architecture
Nepal Bi_Ko
Università degli studi di Firenze - Scuola di Architettura
+22 points Buildner University Rankings!
Italy



















