Introduction
The Charlie Hebdo Portable Pavilion competition calls for the design of a mobile structure to support and promote the principle of free speech. The circumstances surrounding the competition and the demands of the brief are perhaps as profound as the event it responds to. As a portable pavilion, the structure is temporary, yet is required to embody the longevity of cultural memory as well as a universal value. With respect to architecture, such temporality calls into question customary paradigms traditionally employed to memorialize an institution, event, or principle — those of monumentality, semiotics, and metaphor. Most of all, the competition challenges conventional assumptions of free speech in contemporary culture and society — specifically, what makes speech free and how much of it comes at a cost.
Common questions and disciplinary threads entwine the projects submitted — most specifically, typology and context. Successful projects overcame instinct and impulse, and challenged paradigms of liberty and free speech through architectural media of space, material, and form. The jury showed preference to projects demonstrating distinct characteristics including establishment of a clear conceptual, architectural position with respect to a social ideal; engagement with the public as both individual and collective; clarity of circulation, sequence, and narrative; and reconciliation between the abstract and theoretical with the physical and real. The jury was sensitive to the various positions and assumptions underlying the conceptual framework of each project, particularly between adopted or prescribed ideological, political, and cultural binaries. Reduction through polemicizing, for instance, democracy with communism does not acknowledge the increasing grey areas of capitalism’s penchant for surveillance and influence of plutocratic media organizations, therefore establishing opposition to dogma rather than achieve productive discourse. The projects selected, contribute to this discourse through architectural speculation.
Competition results in media publications
1st Prize Winner
Charlie Hebdo Portable Pavilion

Architecture vision competitions bring contemporary issues to the public arena. They invite us to continue the internal dialogue that questions and redirects thinking in the realm of architecture. As architects, it is a unique opportunity to enrich our practice by not only giving an answer to specific and pragmatic matters, but also using our creativity to seek for radical, utopian or more playful scenarios through research and experimentation. It gives us the chance to be critical about the world and to supplement the practice of our discipline with a heightened self-consciousness.
Read full interview
Jury feedback summary
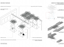
The success of the first place proposal lies in its careful selection, organization, and representation of autonomous archetypes, liberating the pavilion from politically biased signifiers oft assumed through architectural form. The positivity of the architecture and representation creates a sense of no-place (Utopia), allowing the pavilion to proclaim itself in any environment, culture, and situation as a platform for liberated speech.
2nd Prize Winner
Charlie Hebdo Portable Pavilion

The Charlie Hebdo Portable Pavilion competition was too interesting to let us pass up doing it. Because we’ve never had freedom of speech, it’s very difficult for us to solve these problems. How to emphasis the importance of freedom of speech? Should the pavilion be light or heavy? Finally, I let the contradiction and paradox coexist, just like the “conflict” in movie’s play. Therefore, the interests and challenges are the wave that pushes us ahead.
Read full interview
Jury feedback summary
The second prize is awarded to a project distinguished by succinct, profound clarity. The project is described through objective form, the primitive geometries of a sphere and plane, diagrammed a circle and line. The proposal is actualized through a buoyant, spherical balloon which holds aloft a steel roof. The glowing orb floats high above the plaza, framed against the sky, while below, visitors meander beneath the tenuous weight of the suspended steel canopy.
3rd Prize Winner
Charlie Hebdo Portable Pavilion

Because competitions give the architect a very uncommon and unsafe freedom where a dialogue is initiated, not with clients or investors, but with themselves, working as a kind of exorcism where his passions, obsessions, fears, whims... come to light. Competitions help us to know ourselves better.
Read full interview
Jury feedback summary
The third place proposal transcended the veil of ideology seen throughout the entries, established binaries between cultures, economic systems, and political regimes, through its adept handling of a universalizing architecture of silence as an appropriate response to the events in Paris on January 7th, 2015. A wall, circular in plan and punctured by single door separates the interior from the site and the city.