Buildner is a global leader in organizing architecture competitions of all scales — from furniture, cottages, and guesthouses to full city rebranding. With prize budgets ranging from €5,000 to €500,000, Buildner brings proven global experience to every competition.
Launch a competitionLaunch a competition
Introduction
Kurgi Farm is located in Latvia’s North Vidzeme Biosphere Reserve, a large nature conservation area at the Estonian border that accounts for nearly 6% of Latvia’s total land area.
The farm is owned and operated by a couple that breeds Latvian Ardennes, a local species of horse that is perilously close to extinction. Kurgi Farm is one of few remaining breeding programs for the Latvian Ardennes, and home to one of the last four living studs. The Latvian Ardennes is treasured by the local community as an integral part of its cultural heritage.
As part of Kurgi’s pursuit to raise awareness and participation in the protection of the Latvian Ardennes, it seeks to attract visitors to the farm. The Kurgi Observation Tower competition called for participants to submit proposals for a viewing tower, for visitors and guests to experience and gain appreciation for the horses as well as the beautiful, rugged Baltic landscape. The proposed observation tower is to be an iconic landmark set atop a hill on the Kurgi estate, with views of the surrounding lakes, glacially formed hills, rolling plains, and forests.
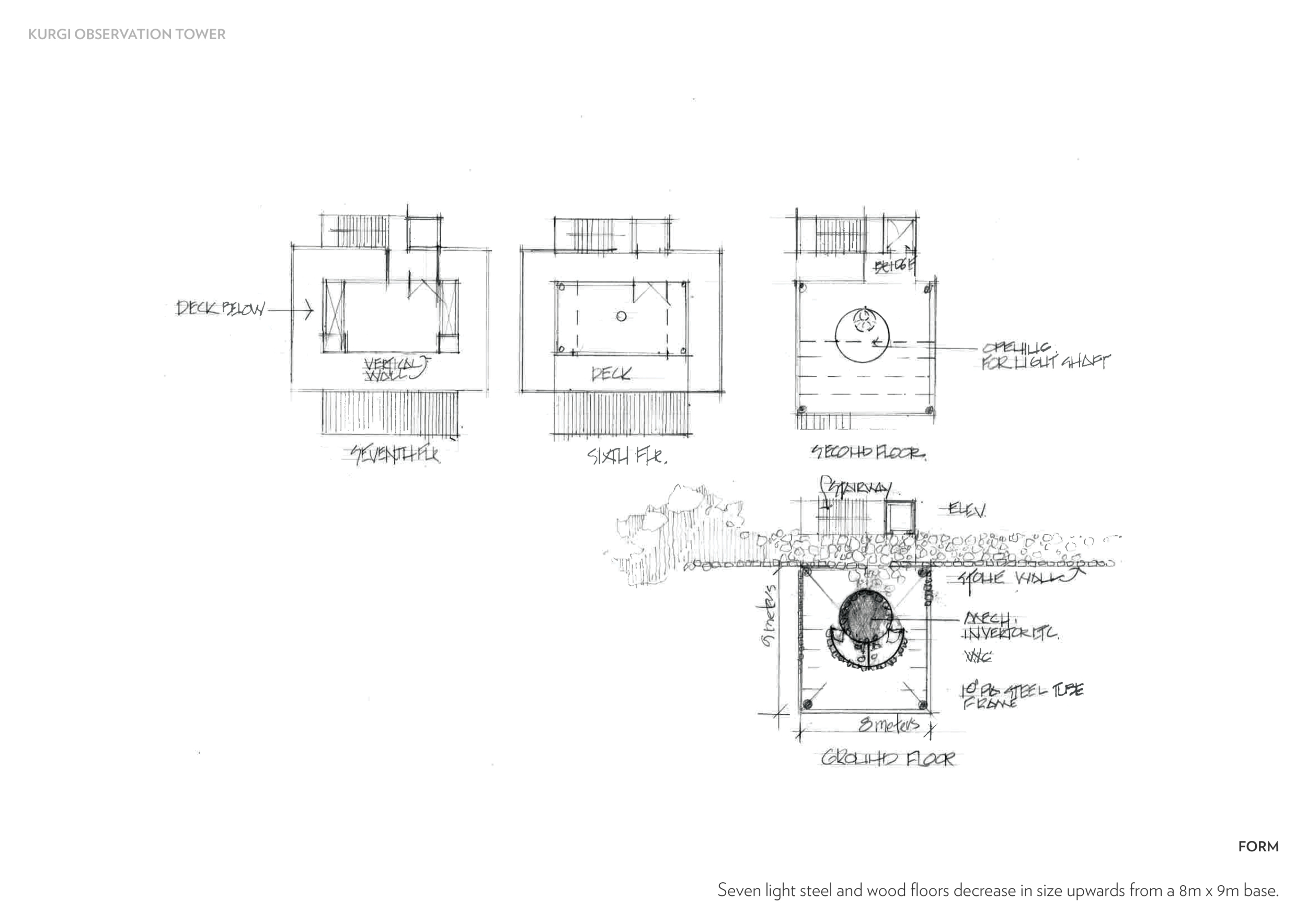
The competition called for a tower limited to 35 meters in height, consisting of five storeys: four offering open views; and a top landing with an enclosed, comfortable space usable in any season, accompanied by an outdoor balcony, seating, a table, and a heat source. The structure is to be made of metal and timber, accessible to all guests, and built in a sustainable manner.
The received submissions offered an excellent mix of designs that explored the tower: functionally, as a tool for viewing; formally, as an iconic sculpture; and as a landscape element integrated with its site. Several structural concepts were put forth. The jury evaluated each submission for its responsiveness to the project brief, its quality of design, and its architectural innovation. The winners and shortlisted entries presented here boast a strong display of experimentation for fully-realizable projects.
Bee Breeders and Kurgi Farm would like to thank all designers who responded to this call for submissions.
1st Prize Winner
Tower of Many Views
Participation in competitions, as well as in exhibitions and publications, for us has become a way to develop our practice and be in dialogue with others.
Read full interviewJury feedback summary
Tower of Many Views is a vertical gridded framework with a system of architectural ‘plug-ins’ that cantilever from a central core - each of these frames a specific view to the site and surrounding Biosphere Reserve. The proposal’s sculptural quality is emphasized by its light, off-white finish, stark against the forested landscape.
2nd Prize Winner +
Client Favorite
Client Favorite
The Spiral Tower
In my opinion, it is always very important for an architect to look for solutions to new problems of different scales. Look for your own approach and carefully study the context, delicately add new objects, woven into the prevailing culture and locality.
Read full interview
Russian Federation
Jury feedback summary
The project is defined architecturally by a series of twisting and ample triangular viewing platforms, set on a structure of rounded steel extrusions. Chosen materials and colors - natural wood and dark-painted steel - are set in harmony with the site. The formal and structural repetition built into the design for the stairs, steelwork, and landings, lend to its constructability.
3rd Prize Winner
Kaskāde
Our daily working environment requires us to provide very practical design solutions for clients. Architecture vision competitions give us the opportunity to think outside of the box and stimulate our creativity with diverse ideas and project locations that challenge our comfort zone.
Read full interview
Canada
Jury feedback summary
Kaskade is a staggered set of platforms rotated at varying angles to focus on distinct scenic points. The tower is entered via a long ramp connected to the main road on the site. The structure is optimized to make use of columns to support multiple landings. The structure implements tension cables and landing platforms that extend beyond the primary structure to emphasize lightness.
BB STUDENT AWARD
Kurgi Observation Tower
Participating in a competition is a good way to motivate ourselves, especially during the time of the pandemic, when the whole industry slows down and employment comes to a standing point – a competition is what keeps our spirits up and our minds active.
Read full interview
BB GREEN AWARD
Atklājums
As a small practice, architecture vision competitions give us the opportunity to test new ideas and flex our creative skills on projects outside of our norm. Approaching projects such as this with freedom and experimentation allows us to develop new skills and mediums for project delivery. This has been seen to inspire the team to develop new skills and knowledge that can be adapted into live projects ongoing within the practice.
Read full interviewHonorable mentions
Shortlisted projects



















