Buildner is a global leader in organizing architecture competitions of all scales — from furniture, cottages, and guesthouses to full city rebranding. With prize budgets ranging from €5,000 to €500,000, Buildner brings proven global experience to every competition.
Launch a competitionLaunch a competition
Introduction
One of the more interesting outcomes of an architectural competition lies in the prospect of imagination, to speculate both the fathomable and spectacular. The competition for a London Internet Museum stages such prospect, considering what seems at first rather tenable — the museum — merged with something historically profound and typologically unprecedented — the internet. The relationship is dichotomous: the museum historically posed to objectify and celebrate cultural and physical artifact, and the internet, a technological horizon perhaps as profound as fire and electricity, fueled by information and algorithm and existing almost entirely in the abstract.
The internet as a technology, has arguably occupied various typological precedents and forms: from the car garage where the internet startup was born, the ubiquitous cartesian data center, suburban office park campus, of historical renovations where the Googles, Facebooks, and Ubers call home, to the glass Apple stores and modern monuments to consumerism. As one might expect therefore, submissions to the competition varied quite dramatically. Many of the entries tended toward technological positivism, idealizing the internet without precaution. The jury showed preference to projects not bound by precedent or assumption — of conventional museum typologies, generalizations of what the internet is and isn’t, and contemporary architectural tropes. Selected projects demonstrate a certain tenacity and ambition, inherent in the internet’s advent — of social collectivism, network theory, and virtuality. While retrospective as a museum, submissions collectively project various architectural and tectonic trajectories, following the internet’s historic wake.
Competition results in media publications
1st Prize Winner
404: Not Found
We don't really ever stop. It's important for us to continue learning, with every competition or project, we always aim to develop our skills in something we have never done, or even with a new software have never used.
Read full interviewJury feedback summary
404:NOT FOUND is distinguished by its resistance to authorial architecture and in its acceptance of the logic of the crowd. The project looks at architecture as an assemblage of crowd-sourced processes rather than the singular vision of a top-down designer. Architecture becomes an act of empowerment and an experiment for the participant, creating a platform and ethos of collaboration that legitimizes and enacts the desires of the user.
2nd Prize Winner
Transistor
I enter about 1-2 architecture vision competitions each year to actively refine my skill sets. Often in our daily jobs we find our ways toward paths of increasing specialization. Competitions are a way to explore the breadth of the field. Especially in regard to teaching, I feel it is important to continue to push yourself and think critically, and the architectural competition is a framework to do that.
Read full interview
United States
Jury feedback summary
The success of the second place proposal, TRANSISTOR, lies in its indifference to the contemporary digital discourse in architecture, favoring instead a strong typology that relates to its historic industrial context, and adapting this typology to critique the cycle of obsolescence of our digitally saturated world.
3rd Prize Winner
Unlimited Possibilities
I take part in conceptual architectural contests because a “concept-related competition” can be an interesting challenge.
Read full interviewJury feedback summary
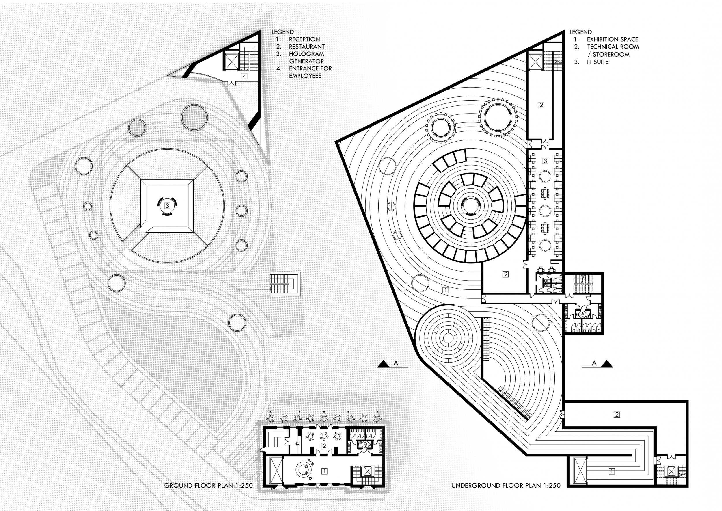
Third place is awarded to a project distinguished by the clever association of the internet museum as a digital monument. The solution is two-fold, the selection and representation of a hologram above ground and the suppression of museum function below ground. Monumentalized as an object within a larger plaza, the hologram is thoughtfully situated and juxtaposed to the adjacent existing North Woolwich Station.





